Denominação inicial: Residência para o Dr. Celso Ferreira
Denominação atual:
Categoria (Uso): Edifício Comercial e/ou Residencial
Subcategoria: Residência de Médio Porte
Endereço: Rua Dr. Lamenha Lins s/n
Número de pavimentos: 2
Área do pavimento: 275,00 m²
Área Total: 275,00 m²
Técnica/Material Construtivo: Alvenaria de Tijolos
Data do Projeto Arquitetônico: 15/07/1935
Alvará de Construção: N° 1361/1935
Descrição: Projeto Arquitetônico para construção de residência e Alvará de Construção.
Situação em 2012: Demolido
Imagens
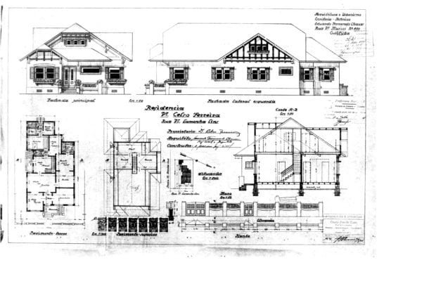
1 - Projeto Arquitetônico.
2 - Alvará de Construção.
Referências:
1 - CHAVES, Eduardo Fernando. Residência para o Dr. Celso Ferreira. Planta dos pisos térreo e superior, fachada principal e lateral esquerda, corte, implantação e muro representados em uma prancha. Microfilme digitalizado.
2 – Alvará n.º 1361
1 - Projeto Arquitetônico.
2 – Alvará de Construção.
2 – Alvará de Construção.
2 – Alvará de Construção.
Acervo: Arquivo Público Municipal de Curitiba; Prefeitura Municipal de Curitiba.
A Residência do Dr. Celso Ferreira: Uma Presença Silenciada na Rua Dr. Lamenha Lins
Na história urbana de Recife, muitas construções contam capítulos que já não podem ser vistos — apenas lembrados. É o caso da Residência para o Dr. Celso Ferreira, um edifício de médio porte erguido com elegância e propósito em meados da década de 1930, na Rua Dr. Lamenha Lins, número s/n, no bairro da Boa Vista. Hoje, seu lugar é ocupado pelo vazio — a casa foi demolida antes de 2012. Mas sua memória permanece nos traços de um projeto arquitetônico meticuloso e no alvará que autorizou sua existência.
Um projeto datado com precisão histórica
Em 15 de julho de 1.935, o arquiteto responsável (cujo nome não consta nas referências preservadas) entregou um projeto detalhado para a construção de uma residência destinada ao Dr. Celso Ferreira, provavelmente um profissional de destaque na sociedade recifense da época — talvez médico, advogado ou funcionário público, como sugere o tratamento honorífico.
O projeto, registrado em microfilme e descrito por Eduardo Fernando Chaves, compunha-se de uma única prancha que reunia:
- planta do piso térreo e do piso superior;
- fachada principal e fachada lateral esquerda;
- corte arquitetônico;
- planta de implantação no terreno;
- detalhamento do muro de fechamento.
Tudo isso indicava não apenas uma residência funcional, mas uma construção pensada com cuidado estético e urbano, integrada ao entorno e respeitosa com as normas da época.
Características construtivas e dimensões
A casa foi projetada como um edifício de dois pavimentos, embora a área total construída conste como 275,00 m² — o que sugere que, na prática, apenas um pavimento foi efetivamente construído, ou que a área se refere ao lote coberto (sem duplicação por andar). A técnica construtiva empregada foi alvenaria de tijolos, método predominante na arquitetura residencial de classe média e alta em Pernambuco durante o período entre-guerras.
O alvará de construção, de número 1361/1935, foi emitido pelo poder público municipal, confirmando a legalidade e o acompanhamento institucional da obra. Esse documento, juntamente com o projeto, compõe um raro testemunho da burocracia e do planejamento urbano do Recife na primeira metade do século XX.
O destino silencioso de uma casa
Por décadas, a residência do Dr. Celso Ferreira pode ter abrigado refeições familiares, tardes de leitura, conversas sob varandas e o cotidiano de uma elite urbana em ascensão. Localizada em uma das ruas mais tradicionais do bairro da Boa Vista — zona nobre do Recife desde o século XIX —, a casa fazia parte de um tecido urbano marcado por sobrados, edifícios ecléticos e, mais tarde, construções modernistas.
Mas, como tantas outras, não resistiu à pressão do desenvolvimento imobiliário ou à deterioração do tempo. Antes de 2012, foi demolida, sem que imagens fotográficas de sua fachada ou interior tenham sido preservadas publicamente. Restam apenas os desenhos técnicos e o alvará — documentos frios, mas carregados de potencial narrativo.
Um legado em traços e números
Hoje, a Residência para o Dr. Celso Ferreira existe apenas nos arquivos. Não há placa, não há ruína, não há memória oral amplamente registrada. E, ainda assim, sua história importa. Ela representa milhares de construções médias do Recife que moldaram a identidade da cidade, sem alarde, mas com solidez.
Seu desaparecimento é um lembrete doloroso: a preservação do patrimônio não se limita aos monumentos famosos. Está também nas casas de tijolo aparente, nas fachadas modestas, nos muros desenhados com esmero — nas residências que, como a do Dr. Celso Ferreira, abrigaram vidas comuns de gente que, um dia, foi chamada de “doutor” com respeito.
E, nesse silêncio pós-demolição, só nos resta honrar sua memória com a precisão dos dados e a ternura da lembrança.
Fontes consultadas:
- CHAVES, Eduardo Fernando. Residência para o Dr. Celso Ferreira. Planta dos pisos térreo e superior, fachada principal e lateral esquerda, corte, implantação e muro representados em uma prancha. Microfilme digitalizado.
- Alvará de Construção nº 1361/1935. Arquivo Histórico do Recife.




Nenhum comentário:
Postar um comentário