Ewaldo Hauer e a Casa na Rua Marechal Floriano Peixoto: Uma Residência de Médio Porte e o Traço de Eduardo Fernando Chaves na Curitiba de 1936
Na Curitiba dos anos 1930, enquanto a cidade se expandia com o entusiasmo da modernidade e as promessas do progresso nacional, erguiam-se casas que não apenas abrigavam famílias, mas também expressavam identidade, status e visão de mundo. Entre essas construções, muitas hoje esquecidas ou desaparecidas, encontra-se a residência projetada pelo arquiteto Eduardo Fernando Chaves para o senhor Ewaldo Hauer — uma edificação de médio porte, localizada na Rua Marechal Floriano Peixoto, nº 2223, e que, apesar de demolida em 2012, conserva sua memória nos traços precisos de um projeto arquitetônico preservado em microfilme no Arquivo Público Municipal de Curitiba.
Este é o retrato de uma casa que existiu — não apenas como tijolos e telhados, mas como símbolo de uma época, de uma classe social em ascensão e do ofício refinado de um arquiteto comprometido com a estética e a funcionalidade.
Um Projeto para a Classe Média em Ascensão
Em 12 de agosto de 1936, poucas semanas após concluir o projeto para João Cavanha, Eduardo Fernando Chaves assinava os desenhos de uma residência bem mais ambiciosa: “Projécto de casa para o Snr. Ewaldo Hauer”. A grafia arcaica — com “c” em “projécto” — evoca a formalidade técnica da época, mas o conteúdo revela uma abordagem moderna, cuidadosa e detalhada.
Localizada numa das principais artérias do bairro Alto da Glória — então um dos núcleos residenciais mais prestigiados da capital paranaense —, a casa ocuparia um terreno na Rua Marechal Floriano Peixoto, nº 2223, rua nomeada em homenagem ao segundo presidente da República, símbolo do ideal republicano que ainda ecoava com força na sociedade brasileira.
Tratava-se de uma residência de dois pavimentos, com área total de 300,00 m² — um tamanho considerável para a época, especialmente em comparação com as moradias populares ou econômicas que dominavam os subúrbios. A escolha pelo sistema construtivo em alvenaria de tijolos indicava não apenas solidez estrutural, mas também vontade de permanência: aquela casa não era provisória; era feita para durar gerações.
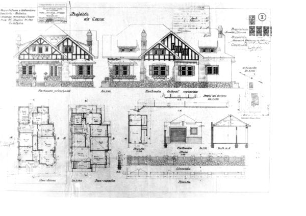
O projeto, elaborado em duas pranchas, incluía:
- Plantas dos pavimentos térreo e superior
- Fachadas principal e lateral esquerda
- Planta de implantação com garagem e muro
- Cortes transversais A-B e C-D, revelando alturas, vãos e volumes internos
Esses elementos demonstram o rigor técnico de Chaves, que não se limitava a desenhar fachadas bonitas, mas pensava a casa como um organismo completo — integrado ao terreno, funcional nos ambientes e coeso na estética.
Ewaldo Hauer: Um Cidadão da Nova Curitiba
Pouco se sabe sobre Ewaldo Hauer, mas seu nome sugere origem alemã — comum na sociedade curitibana, especialmente entre comerciantes, engenheiros e profissionais liberais que compunham a elite urbana do início do século XX. A capacidade de encomendar uma casa de 300 m² em alvenaria, em um bairro nobre, indica que Hauer pertencia à classe média alta ou à burguesia local, talvez ligado ao comércio, à indústria incipiente ou ao funcionalismo público.
Em 1936, o Brasil vivia sob o Estado Novo, com forte centralização política e impulso à urbanização. Curitiba, com cerca de 100 mil habitantes, era uma cidade em transformação: bondes elétricos cruzavam suas ruas, novos bairros surgiam, e a arquitetura refletia uma mistura de ecletismo tardio, influências art déco e os primeiros sinais do modernismo. A casa de Ewaldo Hauer, embora não se saiba seu estilo exato (os microfilmes não permitem análise cromática ou textural), provavelmente equilibrava referências tradicionais com soluções contemporâneas — como era comum nos projetos de Chaves.
A inclusão de garagem no projeto é, por si só, um detalhe revelador. Em meados dos anos 1930, o automóvel ainda era um bem de luxo. Ter uma garagem própria indicava status, modernidade e integração ao novo ritmo da vida urbana.
Eduardo Fernando Chaves: O Arquiteto dos Detalhes
Embora não seja um nome amplamente celebrado nos manuais de história da arquitetura brasileira, Eduardo Fernando Chaves desempenhou papel fundamental na configuração do tecido residencial de Curitiba entre as décadas de 1920 e 1950. Seus projetos, como os de João Cavanha e Ewaldo Hauer, revelam um profissional versátil, capaz de atender desde a residência econômica de madeira até a moradia de médio porte em alvenaria com requintes de conforto e representação.
Chaves não buscava o espetáculo, mas a clareza funcional, a proporção harmoniosa e o respeito ao orçamento do cliente. Suas plantas são lógicas, seus cortes didáticos, suas fachadas equilibradas. Ele representava a arquitetura de serviço — aquela que, sem alarde, constrói a cidade dia a dia.
O fato de seus projetos terem sido microfilmados e arquivados pela Prefeitura de Curitiba mostra que eram considerados tecnicamente sólidos e em conformidade com as normas da época — um testemunho silencioso de competência profissional.
A Demolição e a Memória Arquitetônica
Assim como muitas construções do período pré-modernista, a casa de Ewaldo Hauer foi demolida em 2012. Não há registros públicos sobre o que ocupou seu lugar — talvez um edifício, talvez um terreno baldio. O que resta são os dois microfilmes digitalizados contendo as pranchas do projeto e o Alvará de Construção nº 2135/1936, documentos guardados no Arquivo Público Municipal.
Essa perda física é, infelizmente, comum em cidades que priorizam o novo em detrimento da memória. No entanto, a preservação documental é um ato de resistência. Graças a esses arquivos, podemos reconstruir, pelo menos no imaginário, a casa que um dia abrigou risos, silêncios, refeições de domingo e olhares pela janela do segundo andar.
Conclusão: Uma Casa que Fala de Uma Época
A residência de Ewaldo Hauer não foi um marco arquitetônico revolucionário, mas foi profundamente representativa. Representou a aspiração de uma classe social que acreditava no futuro, a habilidade de um arquiteto que transformava necessidades em formas habitáveis, e o espírito de uma Curitiba que, mesmo modesta, sonhava alto.
Hoje, ao contemplar os traços de Chaves — as linhas limpas da fachada, a distribuição racional dos quartos, a garagem integrada ao muro — vemos mais que um projeto: vemos a materialização de um modo de vida que já não existe, mas que deixou marcas profundas na alma da cidade.
Que a casa na Marechal Floriano Peixoto, embora demolida, continue viva nos arquivos, nas pesquisas e na memória coletiva — como um testemunho silencioso de que toda construção, por mais simples ou grandiosa, é, antes de tudo, um ato de esperança.
#EwaldoHauer #EduardoFernandoChaves #ArquiteturaDeCuritiba #HistóriaUrbana #CasaDeMédioPorte #Curitiba1936 #PatrimônioArquitetônico #ResidênciaHistórica #AlvenariaDeTijolos #ArquivoPúblicoDeCuritiba #DemoliçãoEHerança #ArquiteturaResidencialBrasileira #MemóriaConstruída #RuaMarechalFlorianoPeixoto #ProjetosArquitetônicosAntigos #CuritibaHistórica #ArquiteturaEcletica #PatrimônioEfêmero #PreservaçãoDaMemória #AltoDaGlória
Eduardo Fernando Chaves: Arquiteto
Denominação inicial: Projécto de casa para o Snr. Ewaldo Hauer
Denominação atual:
Categoria (Uso): Residência
Subcategoria: Residência de Médio Porte
Endereço: Rua Marechal Floriano Peixoto, nº 2223
Número de pavimentos: 2
Área do pavimento: 300,00 m²
Área Total: 300,00 m²
Técnica/Material Construtivo: Alvenaria de Tijolos
Data do Projeto Arquitetônico: 12/08/1936
Alvará de Construção: N° 2135/1936
Descrição: Projeto Arquitetônico para construção de residência e Alvará de Construção.
Situação em 2012: Demolido
Imagens
1 - Projeto Arquitetônico.
2 – Cortes A-B e C-D da residência.
3 - Alvará de Construção.
Referências:
1 e 2 - CHAVES, Eduardo Fernando. Projécto de casa para o Snr. Ewaldo Hauer. Planta dos pisos térreo e superior, fachadas principal e lateral esquerda, implantação, garagem e muro; planta com cortes A-B e C-D da residência representados em duas pranchas. Microfilme digitalizado.
3 - Alvará n.º 2135
1 - Projeto Arquitetônico.
2 – Cortes A-B e C-D da residência.
3 - Alvará de Construção.
3 - Alvará de Construção.
3 - Alvará de Construção.
Acervo: Arquivo Público Municipal de Curitiba; Prefeitura Municipal de Curitiba.





Nenhum comentário:
Postar um comentário